Equipamiento
Agua corriente, Estacionamientos, Luz eléctrica, Seguridad 24/7
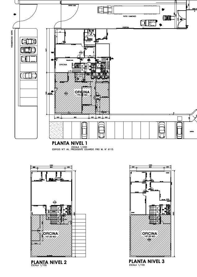
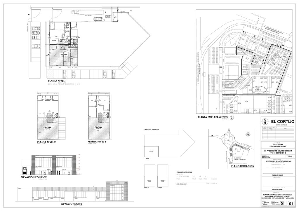
Dirección
Eduardo Frei Montalva 6115-C
Obtenga más información
Contáctenos y reciba información sobre los espacios disponibles.
- +56 9 3380 1244
- administracionelcortijo@patagonica.cl


